Информация
Система MEPSCO Brine Mix and Chill воплощает философию JBT Marel: ваше технологическое оборудование должно подстраиваться под ваши операции, а не наоборот. Благодаря простой сенсорной панели управления, резервуарам объемом от 50 до 1200 галлонов и множеству конфигураций, подходящих для ваших конкретных потребностей, вы можете оптимизировать процессы смешивания и охлаждения без необходимости корректировать существующие рецепты или подходы.
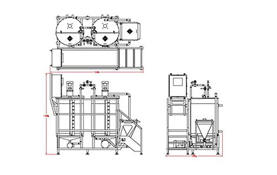
JBT Marel также по-прежнему стремится соответствовать и превосходить самые высокие стандарты безопасности и гигиены пользователей и потребителей. Конструкция системы смешивания и охлаждения, полностью выполненная из нержавеющей стали, и ее открытая структура разработаны для обеспечения максимальной гигиены и санитарных условий эксплуатации, а также для облегчения очистки и осмотра.
Благодаря нескольким вариантам размеров, весовым датчикам для взвешивания в воде и ингредиентов, а также возможности настройки системы с несколькими смесительными и резервуарами для хранения в соответствии с вашими требованиями, система MEPSCO Brine Mix and Chill System полностью настраивается под индивидуальные потребности. Позвольте нам помочь вам настроить идеальную систему для ваших нужд и целей.
Особенности и преимущества
Система смешивания и охлаждения рассола JBT Marel предлагает гибкость и эффективность производителям в различных отраслях промышленности. Благодаря практически безграничным возможностям настройки и высокой мощности, а также надежной работе, вы заметите значительное улучшение качества и производительности всей вашей системы.
- Санитарная конструкция – Система имеет полностью нержавеющую стальную конструкцию открытого типа, что позволяет быстрее и эффективнее проводить очистку и осмотр.
- Точное выполнение – Миксеры с высоким сдвигом на приводах с регулируемой скоростью обеспечивают смешивание ингредиентов на нужном уровне каждый раз.
- Постоянное применение – резервуары установлены на весоизмерительных датчиках для взвешивания воды и ингредиентов и контроля уровня в течение всего процесса, что обеспечивает однородность конечного продукта.
- Гибкие конфигурации – Модульная конструкция системы MEPSCO Brine Mix and Chill System предлагает широкие возможности настройки для управления скоростью и уровнем смешивания, что позволяет настроить машину в соответствии с вашими конкретными потребностями.
- Высокотехнологичные средства управления – усовершенствованная сенсорная панель управления позволяет легко, быстро и эффективно настраивать параметры машины.
- Ориентированная на пользователя конструкция – двухдюймовый эдуктор обеспечивает доступ на уровне пола, а резервуары с рубашкой и опции теплообменника повышают скорость охлаждения.
Модели и опции систем смешивания и охлаждения рассола
В JBT Marel мы знаем, что не существует универсального подхода к переработке. Именно поэтому мы разрабатываем и производим все наши решения FoodTech с учетом невероятно разнообразных применений и требований в области переработки по всему миру, и система MEPSCO Brine Mix and Chill не является исключением. Мы предлагаем стандартные резервуары рабочей емкостью 100, 200 и 300 галлонов, а также различные резервуары на заказ емкостью от 50 до 1200 галлонов с несколькими конфигурациями, чтобы удовлетворить любые потребности в переработке.
Благодаря модульной конструкции с широкими возможностями настройки и высокопроизводительным смесителям C.A.T. с двигателями из нержавеющей стали мощностью 2, 5 или 7 л.с., система позволяет эффективно и точно регулировать уровни смешивания и скорость. Программируемая сенсорная панель управления обеспечивает полный контроль над параметрами.
Часто задаваемые вопросы
Как я могу запрограммировать систему?
Когда речь идет о работе с большими объемами рассола и маринада, универсального подхода недостаточно. Именно поэтому JBT Marel разработала высоко настраиваемую систему, которая легко удовлетворит ваши потребности и предпочтения. Система смешивания и охлаждения рассола MEPSCO оснащена высокотехнологичной сенсорной панелью управления, которая позволяет изменять настройки в зависимости от ваших потребностей и целей. Панель интуитивно понятна и проста в эксплуатации, а также позволяет настраивать рецепты, время смешивания, скорость, уровень воды и время автоматического отключения.
Будет ли JBT Marel проводить обучение по эксплуатации этой машины?
Конечно! Наш многолетний опыт в качестве лидера в области пищевых технологий научил нас, что успех зависит не только от технологического развития. Мы делаем все возможное, чтобы обеспечить вам успех на каждом этапе. Именно поэтому мы предлагаем широкий спектр услуг, включая обучение, комплекты для модернизации, техническое обслуживание, ремонт и многое другое!
Какие размеры резервуаров доступны?
Система MEPSCO Brine Mix and Chill System разработана с учетом ваших конкретных рецептов, существующих производственных линий и требований к обработке. Поэтому мы предлагаем резервуары различных размеров в нескольких конфигурациях. Мы предлагаем стандартные резервуары рабочей емкостью 100, 200 и 300 галлонов, а также более мелкие (50 галлонов) и гораздо более крупные (до 1200 галлонов) резервуары.
Оцените передовые инновации в наших исследовательских центрах
Компания JBT Marel известна во всем мире благодаря передовому технологическому оборудованию и непревзойденному уровню обслуживания и поддержки клиентов, но мы не останавливаемся на достигнутом. На протяжении всей нашей долгой истории мы остаемся верными принципам прозрачности, сотрудничества и честности. Приглашаем вас посетить наши глобальные исследовательские и технологические центры, где вы сможете напрямую поработать с нашими всемирно известными экспертами, протестировать новое оборудование, конфигурации и линейки систем, а также усовершенствовать свои рецепты.
JBT Marel – настоящий лидер в области пищевых технологий
Работая с JBT Marel, вы получаете больше, чем просто поставщика оборудования. Мы неустанно работаем над тем, чтобы наши клиенты получили надежного партнера. Благодаря более чем вековому опыту работы в пищевой промышленности, мы накопили глубокое понимание реальных проблем, с которыми сталкиваются производители на различных рынках, и по-прежнему стремимся разрабатывать высокотехнологичные решения и помогать нашим партнерам достигать их целей. Наряду с нашими передовыми системами вы также получите доступ к всемирно признанной команде экспертов, постоянным услугам по техническому обслуживанию, запасным частям, комплектам для модернизации и многому другому.